Asking price £675,000

Denham Way, Denham

3 Bedroom House - Semi-Detached for Sale

  • Extended semi detached property
  • Three bedrooms
  • Spacious kitchen/breakfast room
  • Open plan living space
  • Utility room
  • Ground floor WC
  • Modern family bathroom
  • Off street parking
  • Large rear garden
  • No onward chain

This beautifully presented home offers well-proportioned accommodation throughout and is ideally positioned in a sought-after location close to Denham Village.

Description

A beautifully presented and thoughtfully extended three-bedroom semi-detached home, ideally situated on Denham Way in Denham. Offering spacious and stylish accommodation throughout, the property features a generous reception room and an impressive open-plan kitchen/dining/family area opening onto the rear garden. With well-proportioned bedrooms, a modern family bathroom, and driveway parking, this superb home is perfectly suited to contemporary family living.

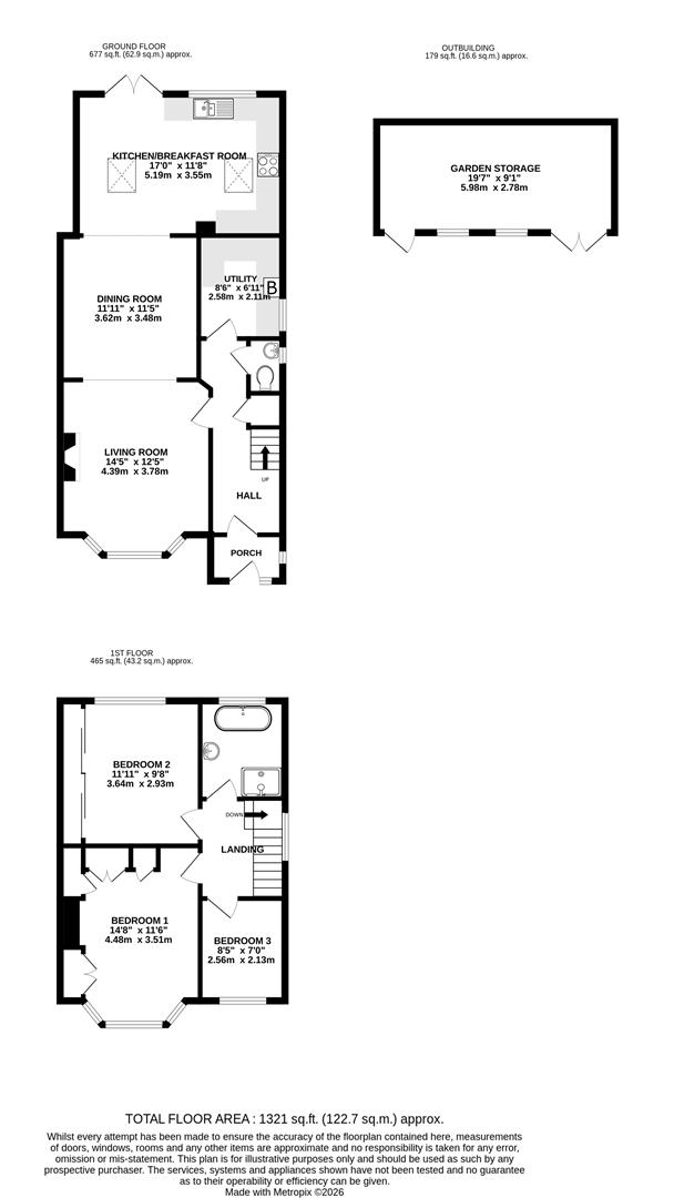
Accommodation

The accommodation briefly comprises an entrance porch leading into a welcoming entrance hall, with stairs rising to the first floor and access to a convenient ground floor WC.
The open-plan reception room is a particular feature of the home, boasting a charming fireplace with marble surround and a front-facing bay window that allows for plenty of natural light. The dining area flows seamlessly into the extended kitchen/breakfast room, which is well appointed with a generous range of fitted units and drawers, complemented by ample work surfaces. There is an inset gas hob with extractor hood over, an integrated double oven, and space for a dishwasher. Double doors provide views over and direct access to the rear garden.
A separate utility room offers additional built-in storage and work surfaces, along with space for further appliances.
To the first floor, there are two well-proportioned double bedrooms, a single bedroom, and a modern family bathroom comprising an enclosed bath, separate shower cubicle, wash hand basin, and WC.

Outside

The property features a large, well maintained rear garden, mainly laid to lawn and enhanced by mature shrubs. there is a large Summerhouse at the bottom of the garden. A paved patio provides an ideal setting for outdoor entertaining, and there is a paved pathway to the side of the property.
To the front a paved driveway provides off street parking.

Situation

Situated close to historic Denham Village, this property enjoys a picturesque setting in the heart of the Buckinghamshire countryside. Denham offers the quintessential charm of English village life, with its rich history, period architecture, and tranquil atmosphere. The village is home to a variety of traditional pubs and restaurants, a local church, and scenic countryside walks through Denham Country Park.
Denham Station is less than a mile away via a local footpath, providing direct rail services to London Marylebone in approximately 21 minutes. The M40 (Junction 1) is easily accessible, offering convenient links to the M25, M4, M1, and both Heathrow and Gatwick airports.
Additional shopping and amenities can be found nearby in Uxbridge and Gerrards Cross.

Terms and notification of sale

Tenure: Freehold
Local Authority: South Bucks
Council Tax: E
EPC Rating: TBC

Disclaimer

Cameron endeavour to maintain accurate depictions of properties in Virtual Tours, Floor Plans and descriptions, however, these are intended only as a guide and purchasers must satisfy themselves by personal inspection.

Stamp Duty Calculator

Top