Asking price £650,000

Harefield Road, North Uxbridge

3 Bedroom House - Semi-Detached for Sale

  • Three bedroom House
  • Stylish interiors
  • Very well presented
  • Superb rear garden
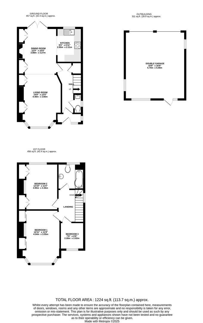
  • Double garage
  • Off street parking
  • Prime location
  • Ground floor WC
  • Open plan reception rooms
  • Close to well regarded schools

Set in a highly sought-after location just moments from the town centre, well-regarded schools, and excellent transport links, this traditional home combines classic charm with stylish modern interiors.

Description

This impressive home features beautifully styled modern interiors, spacious living areas, a delightful rear garden, and the added benefit of a large double garage with off-street parking.

Accommodation

The front reception room features a double-glazed window with a front aspect, along with bespoke shelving and storage. The rear reception room also includes bespoke display cabinets and storage, a feature fireplace, and double-glazed French doors that overlook and open onto the rear garden.
The modern kitchen is fitted with a comprehensive range of storage units and drawers, complemented by granite work surfaces. Integrated appliances include an inset gas hob with extractor hood above and an electric oven below, while there is also space for a fridge freezer. A rear-aspect double-glazed window provides pleasant views over the garden.
To the first floor, there are three well-proportioned bedrooms. The primary bedroom benefits from bespoke fitted wardrobes and a front-aspect double-glazed bay window. The second bedroom also features bespoke fitted wardrobes and a rear-aspect double-glazed window overlooking the garden. The third bedroom is a single room with a front-aspect double-glazed window.
The modern, fully tiled family bathroom comprises an enclosed bath with shower over, wash basin, WC, and a rear-aspect double-glazed window.

Outside

To the rear of the property lies a large, well maintained garden featuring a variety of mature shrubs and trees, along with a paved patio area. At the far end of the garden, there is a substantial double garage equipped with power and lighting, accessible via a rear service road. Additional off-street parking is also available at the rear.
To the front, the property is complemented by an attractive garden with mature shrubs offering a good degree of privacy and seclusion.

Situation

Positioned in this well regarded location moments from Uxbridge town centre with its multiple shopping facilities, restaurants, bars and Uxbridge station which provides Metropolitan and Piccadilly line services to London. For the motorist the A40 / M40 is a short drive away giving access to London and the M25. Well regarded primary and secondary schools are within close proximity.

Terms and notification of sale

Tenure: Freehold
Local Authority: London Borough of Hillingdon
Council Tax Band: E
EPC Rating: D

Disclaimer

Cameron endeavour to maintain accurate depictions of properties in Virtual Tours, Floor Plans and descriptions, however, these are intended only as a guide and purchasers must satisfy themselves by personal inspection.

Stamp Duty Calculator

Top