£775,000

Barley Drive, Chesterfield, Whitstable

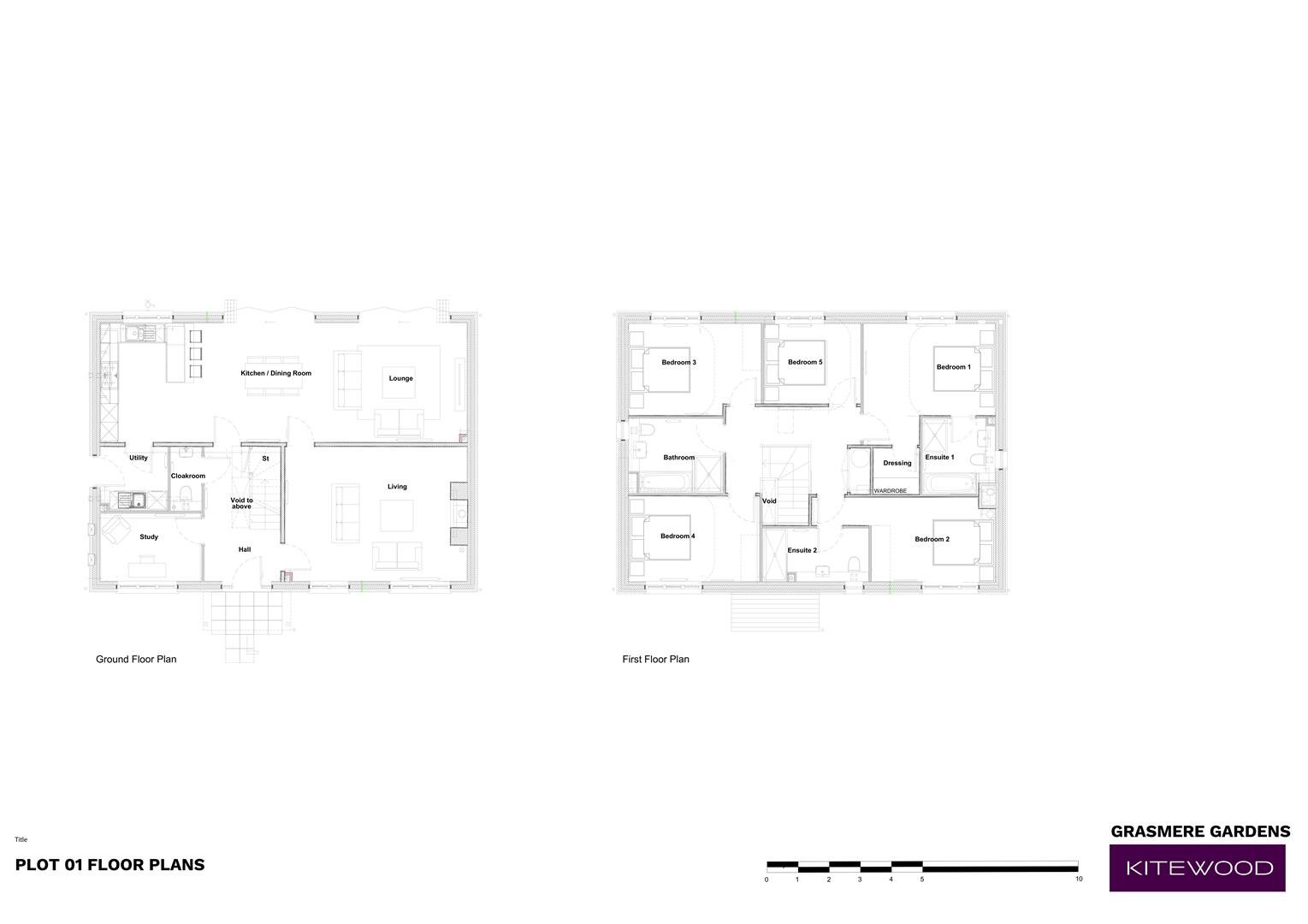
5 Bedroom House - Detached for Sale

  • Brand new Five bedroom detached property
  • Investment opportunity
  • Guaranteed rent of £38,750 per annum
  • 5% Yield
  • Off street parking and car port
  • Family bathroom
  • En-suite bathroom to primary bedroom
  • Bespoke design fully fitted kitchen
  • All homes have a predicted EPC rating of A or B
  • PV Panels

A superb investment opportunity with a guaranteed 5% yield within this stunning new development of Unique family homes.

Description

Each property is thoughtfully designed to suit modern flexible lifestyles, however you love to live your life. The contemporary room layouts and creative designs maximise space and light, so you’ll feel relaxed and comfortable whether you are working from home, entertaining friends or having a quiet night in. Each home looks just as good on the outside, with a selection of house types to choose from. Warm coloured bricks, clay tiles and weatherboarding building materials to reflect the local area and create an elegant style, blending the best of modern and traditional. Perfectly proportioned clusters of homes are complemented by the sweeping areas of verdant landscaping. To complete the picture, every house has a private garden, perfect for barbecues, relaxing in the sun and family fun.

Accommodation

KITEWOOD we believe our desirable, high quality homes deserve the highest specification inside and out. From stunning branded integrated appliances and sleek cupboards in the kitchen, to stylish chrome fittings in the bathroom, you’ll be impressed by the specification of your new home. Experts have carefully designed the room layouts which are then complemented by the superior quality of the fixtures, fittings and finish. Excellence is standard and there are touches of luxury throughout, making your Kitewood house somewhere you’ll be proud to call home.

Outside

Fencing, turf and patio to rear gardens • External lighting to front and rear doors • Car parking to all properties, some with car port also • Bike storage to all homes • Electric car charging point to all homes • All homes have a predicted EPC rating of A or B • PV Panels.

Situation

Grasmere Gardens is perfectly placed to explore both locally by foot or further afield by car or train. With good road and rail links, it makes it easy to travel for work or leisure. Chestfield & Swalecliffe Station is just a 13 minute walk away and from here you can catch a direct train to London Victoria. Alternatively, you can reach London St Pancras International in just 1hr 22 minutes from nearby Herne Bay.

Disclaimer

Cameron endeavour to maintain accurate depictions of properties in Virtual Tours, Floor Plans and descriptions, however, these are intended only as a guide and purchasers must satisfy themselves by personal inspection.

Stamp Duty Calculator

Top