Asking price £650,000

Newtown Road, Denham

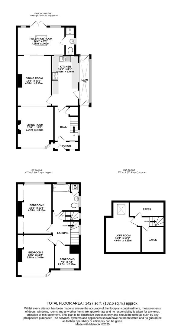
3 Bedroom House - Semi-Detached for Sale

  • Stunning family home
  • Extended living space
  • Very well proportioned
  • Loft room
  • Three bedrooms
  • Modern fitted kitchen
  • Off street parking
  • Family bathroom
  • Backing onto open fields
  • Ground floor shower room

An outstanding semi-detached home offering exceptionally spacious accommodation, beautifully presented throughout.

Description

Set over three light-filled levels, this impressive property enjoys a peaceful yet convenient location, backing directly onto open fields. This home boasts generous room sizes, stylish interiors, and a thoughtfully designed layout that maximizes natural light and space.

Accommodation

The accommodation on offer briefly comprises of, entrance porch and entrance hall with tiled flooring, stairs to the first floor and built in storage. The spacious open plan living room provides ample living and dining space tiled flooring runs through the space and sliding doors open into the extended reception room that overlook and opens onto the rear garden. There is a ground floor shower room and a recently refitted kitchen with a range of storage units and drawers, ample work surfaces and space for appliances, a double glazed door opens into the utility space.
To the first floor there are three well proportioned bedrooms, the two larger double bedrooms have the benefit of built in wardrobes, there is a modern fully tiled family bathroom with built in storage.

Outside

There is an enclosed good size garden to the rear of the property that is laid to lawn with paved patio areas, backing onto open fields.
To the front of the property a block paved driveway provides off street parking.

Situation

Newtown Road is located within a short walk of Uxbridge Town Centre offering an array of restaurants, cafes and bars, as well as Chimes Uxbridge and The Mall shopping centres. Uxbridge Tube Station provides Metropolitan and Piccadilly Line services to London. There are also fantastic sports facilities all within easy reach, Uxbridge sports and leisure complex with Olympic outdoor swimming pool.
Heathrow Airport, Stockley Park, Hillingdon Hospital and Brunel University are all within easy reach, for the motorist the A40/M40 is just a short Drive away.

Terms and notification of sale

Tenure: Freehold
Local Authority: South Bucks
Council Tax Band: D
EPC rating: D

Disclaimer

Cameron endeavour to maintain accurate depictions of properties in Virtual Tours, Floor Plans and descriptions, however, these are intended only as a guide and purchasers must satisfy themselves by personal inspection.

Stamp Duty Calculator

Top