Guide price £425,000

Vineries Close, Sipson, West Drayton

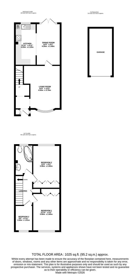
3 Bedroom House - Mid Terrace for Sale

  • Three bedroom terraced house
  • Complete renovation project
  • Separate living and dining rooms
  • Private rear garden
  • Garage and off street parking
  • Potential to extend (STPP)

An opportunity to acquire a three bedroom terraced house in West Drayton, offering scope for refurbishment and improvement.

Description

A three bedroom terraced house presented as an excellent opportunity for complete refurbishment and modernisation. Offering well proportioned accommodation arranged over two floors, the property is ideally suited to buyers seeking a full renovation project with scope to add value and tailor the interior to their own specification.

Accommodation

The ground floor comprises an entrance hall leading through to a generous reception room with a bay window to the front. To the rear, a separate dining room provides access to the garden and connects to the adjoining kitchen, which is arranged with a range of base and wall units and offers further potential for reconfiguration or extension (subject to the usual consents).

On the first floor, the property provides three bedrooms, including two well sized doubles and a third single bedroom, together with a family bathroom accessed from the landing.

Externally, the property benefits from a private rear garden, offering a blank canvas for landscaping, while to the rear there is a detached garage and additional parking.

Location

West Drayton is well regarded for its excellent connectivity and growing appeal among commuters. West Drayton Station provides access to the Elizabeth Line, offering fast and direct services into Central London, the West End and Canary Wharf, as well as convenient links to Heathrow Airport. The nearby M4 and M25 further enhance road connections across London and the wider motorway network.

The area benefits from a good range of local amenities, including shops, supermarkets and independent cafés, with more extensive retail and leisure facilities available in nearby Uxbridge. There are a selection of well regarded schools and access to open green spaces.

Additional information

Tenure: Freehold
Local Authority: London Borough of Hillingdon
Council Tax: D
EPC Rating: C

Disclaimer

Cameron endeavour to maintain accurate depictions of properties in Virtual Tours, Floor Plans and descriptions, however, these are intended only as a guide and purchasers must satisfy themselves by personal inspection.

Stamp Duty Calculator

Top