£1,875 pcm

Bentinck Road, West Drayton

2 Bedroom Apartment to rent

  • Waterways House
  • Larger than average two bedroom apartment
  • En suite shower romm
  • Secure gated parking
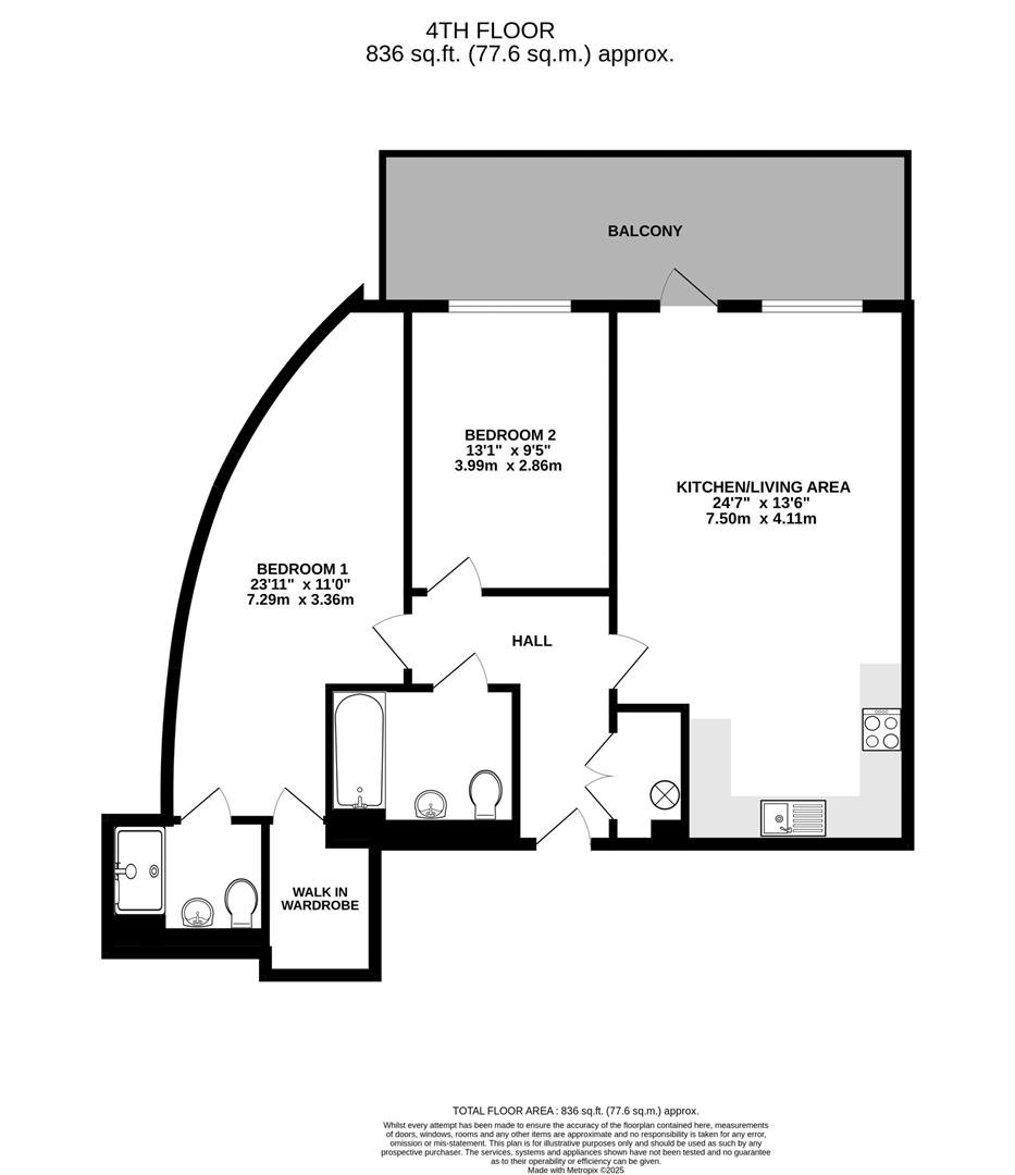
  • Walk in wardrobe
  • Furnished
  • Available NOW
  • EPC Rating- B

A larger than average two double bedroom apartment located in the latest prestigious canal side development, Waterways House.

Description

A larger than average two double bedroom apartment located in the latest prestigious canal side development, Waterways House. This fourth floor apartment presents two large double bedrooms, main bedroom with en suite and walkin wardrobe, open plan reception with large patio doors leading onto a large balcony, luxury appointed kitchen with built in appliances including a dishwasher. Further benefits include security entry system. With West Drayton train station a stone throw away this spectacular apartment would suit both city commuters and local professional. Available NOW and presented furnished.

Disclaimer

Cameron endeavour to maintain accurate depictions of properties in Virtual Tours, Floor Plans and descriptions, however, these are intended only as a guide and purchasers must satisfy themselves by personal inspection.

Top