Guide price £539,000

Yew Avenue, Yiewsley, West Drayton

3 Bedroom House - Semi-Detached for Sale

  • Spacious semi detached house
  • Three bedrooms
  • Open plan living space
  • Modern fitted kitchen
  • Conservatory
  • Large rear garden
  • Principal bedroom with en-suite
  • Family bathrooms
  • Private driveway
  • Off street parking

This spacious three-bedroom semi-detached property features well-proportioned accommodation throughout, complemented by a generous garden and the benefit of off-street parking.

Description

Providing well proportioned accommodation, with an attractive rear garden and off street parking.

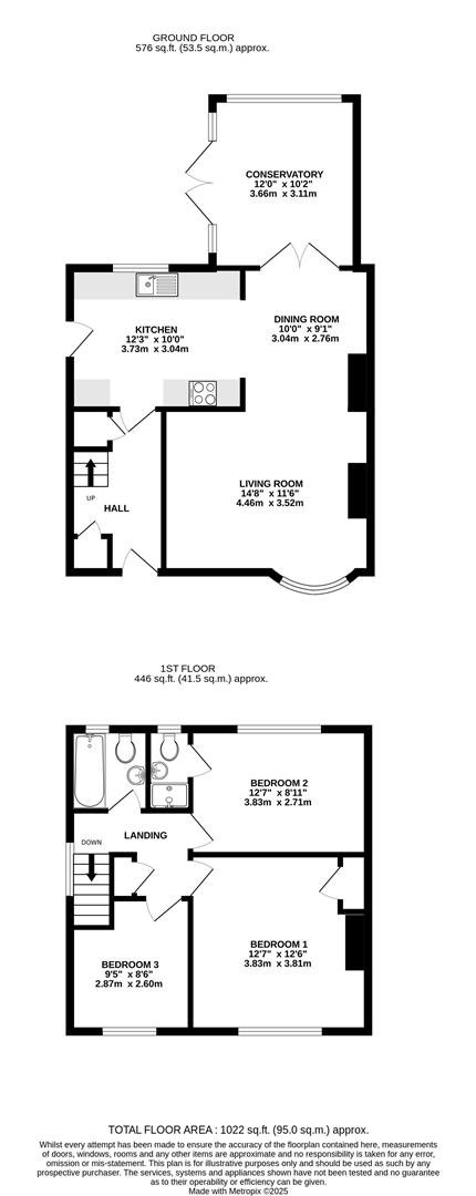
Accommodation

The property offers well-proportioned accommodation comprising, entrance hall with stairs to the first floor, and a large open-plan reception room with a front-aspect double-glazed bay window providing ample living and dining space. This leads into a modern fitted kitchen with a range of storage units and drawers, generous work surfaces with an inset hob, extractor hood, and electric oven, plus additional space for appliances. A rear-aspect double-glazed window and side door provide access to the garden, while double-glazed doors open from the reception area into a conservatory that overlooks and opens onto the rear garden.
To the first floor, there are three well-proportioned bedrooms, including an en-suite shower room to the second bedroom, and a family bathroom.

Outside

There is a generous garden to the rear of the property with a variety of mature shrubs and trees.
There is an area of garden to the front and a private drive provides off street parking.

Situation

West Drayton offers excellent transport links. The area benefits from quick access to central London, with journeys to Bond Street from West Drayton taking just 30 minutes. Additionally, Heathrow Airport is just a short drive away, making international travel easily accessible. With good local bus services and road connections, including the M4 and M25, West Drayton offers exceptional transportation options for residents. Combined with local amenities such as shops, schools, and green spaces

Terms and notification of sale

Tenure: Freehold
Local Authority: London Borough of Hillingdon
Council Tax Band: D
EPC Rating: D

Disclaimer

Cameron endeavour to maintain accurate depictions of properties in Virtual Tours, Floor Plans and descriptions, however, these are intended only as a guide and purchasers must satisfy themselves by personal inspection.

Stamp Duty Calculator

Top