Asking price £550,000

Cherry Orchard , West Drayton

3 Bedroom House - Semi-Detached for Sale

  • Spacious semi detached home
  • Three bedrooms
  • Prime location
  • No upper chain
  • Extended kitchen
  • Ample off street parking
  • Open plan living space
  • Sought after cul-de-sac

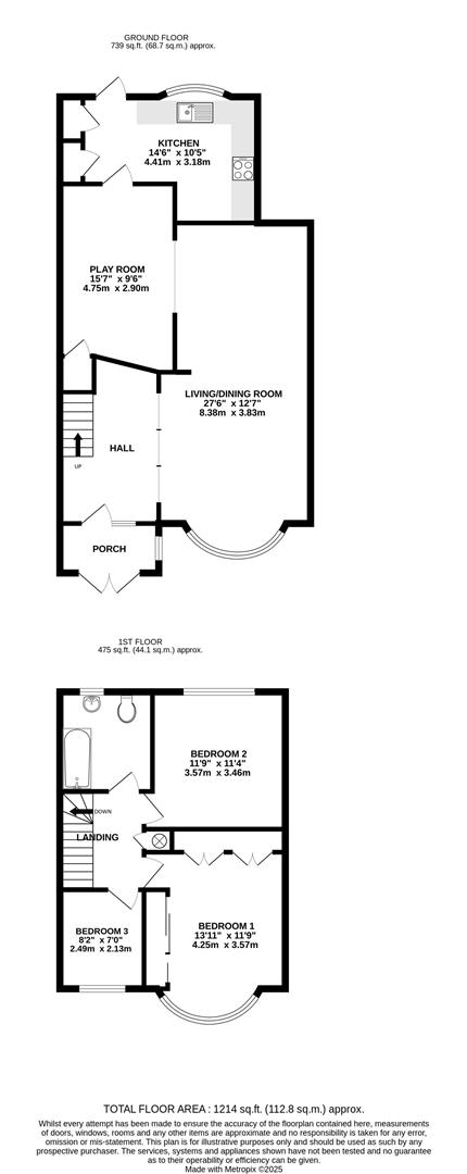
Located in a quiet and highly sought-after cul-de-sac just moments from West Drayton Station, this traditional three-bedroom semi-detached home offers generously proportioned living space ideal for growing families.

Description

With no upper chain, this home presents a rare opportunity to secure a desirable property in a prime location close to excellent transport links and local amenities.

Accommodation

This attractive home provides thoughtfully designed and very well proportioned accommodation. The entrance hall features stairs to the first floor and convenient under-stairs storage, The spacious open-plan living and dining area flows seamlessly into the impressive extended kitchen, which is fitted with a range of storage units and drawers and has space for appliances. Ample work surfaces have an inset sink, there is a range cooker with extractor hood above.
On the first floor, there are three well-proportioned bedrooms and a tiled family bathroom, comprising an enclosed bath with shower over, a wash basin with storage below, and a separate WC.

Outside

There is an enclosed walled garden to the rear, and a paved driveway provides ample off street parking.

Situation

Cherry Orchard is conveniently located in the heart of West Drayton just a short distance from the station with the Elizabeth line providing links to central London and the surrounding areas. The high street with multiple local shops, takeaways, restaurants and coffee shops. Uxbridge town centre is close by with a wider range of shops and entertainment facilities. A number of highly regarded schools in the local area including St Martin's primary school. For the commuters the M4 and M25 motorway networks, Stockley Business Park, Brunel University and Uxbridge are all within easy motoring distance.

Terms and notification of sale

Tenure: Freehold
Local Authority: London Borough of Hillingdon
Council Tax Band: D
EPC Rating: E

Disclaimer

Cameron endeavour to maintain accurate depictions of properties in Virtual Tours, Floor Plans and descriptions, however, these are intended only as a guide and purchasers must satisfy themselves by personal inspection.

Stamp Duty Calculator

Top